室内設備

あなたの暮らしを彩る
最新の設備を備えました。
-
イヌ・ネコ飼育可能マンション
大切な家族であるペットと一緒に暮らすことができるマンションです。
最近、人気のネコも飼育可能!※飼育の際は、ご契約時に申請が必要となります。
※ペット飼育に伴い、契約内容が一部変更となります。
-
優良防犯マンション認定取得!
極限まで安全を追求したデジタルキーを標準装備

一般社団法人「全国防犯啓郷豪推進機構」認定
充実安心機能
パスワード 4桁〜12桁、最大8個まで登録可能です。 デジタルキー 高性能なデジタルキーによる開錠も可能です。(ハッキング防止機能付) オートロック ドアが閉まると、自動的に施錠します。手動ロックへの切り替えも可能です。 オートリロック機能 開錠後にドアを開けなければ、約10秒後に自動的に再施錠します。 いたずら防止警報機能 5回操作を誤ると、警報と同時に機能が一時停止します。 こじ開け警報 無理やりにこじ開けると、警報が2分間鳴り響きます。 外部電源供給機能 電池がなくなった時の緊急時用に、9V門型乾電池で動作します。 音量調整 音量を「無音」から最大の8レベルまで調整が可能です。 その他の機能 二段階マスター(ICタッチキー)/一時マナーモード/ランダム表示暗証番号/施錠不具合警報/電池残量警報/タッチパッドボタンカバー/防水IPX-5
一般社団法人「全国防犯啓郷豪推進機構」認定
-
インターネット無料!
プロパイダー契約等の面倒な作業は不要!
すぐにインターネットがご利用頂けます。無料Wi-Fiなのでルーター等の準備も不要!
各入居者様専用のSSIDとパスワードを、使用する端末に設定するだけで、入居したその日から快適にインターネットがご利用いただけます!※SSIDとパスワードにつきましては管理会社へお問合せください。

個別契約可能プロパイダ ご利用の際は別途各プロバイダとの個別契約が必要となります。













5つのセキュリティ





室内レイアウト

生活動線にこだわり、ディティールにこだわり、その結果。
ステキなお部屋になりました。
A1-type
(1K:住戸面積 25.65㎡・バルコニー面積 3.82㎡)
天井が高い7.00帖の洋室に収納充実なウォークインクローゼット等、ワンランク上の1Kです。
ホワイトを基調としたやわらかい空間の居室と、機能性を重視した設備を設けています。


A2-type
(1K:住戸面積 25.65㎡・バルコニー面積 5.10㎡)
天井が高い7.35帖の洋室に収納充実なウォークインクローゼット等、ワンランク上の1Kです。
ホワイトを基調としたやわらかい空間の居室と、機能性を重視した設備を設けています。


A3-type
(1K:住戸面積 25.65㎡・バルコニー面積 5.10㎡)
天井が高い7.35帖の洋室に収納充実なウォークインクローゼット等、ワンランク上の1Kです。
ホワイトを基調としたやわらかい空間の居室と、機能性を重視した設備を設けています。


A4-type
(1K:住戸面積 25.65㎡・バルコニー面積 3.82㎡)
天井が高い7.00帖の洋室に収納充実なウォークインクローゼット等、ワンランク上の1Kです。
ホワイトを基調としたやわらかい空間の居室と、機能性を重視した設備を設けています。


地図・交通

天神、博多へラクラクアクセス、
人気の清川で充実の新生活を。


周辺施設

あなたの生活の「便利」を支えます。
利便性と居住性の両立を実現しました。
レジャー
徒歩10分圏内

ファミリーマート 福岡清川3丁目店
約140m【徒歩約2分】
ローソン 高砂2丁目店
約150m【徒歩約2分】
セブンイレブン福岡清川2丁目店
約270m【徒歩約4分】
ドラッグイレブン 清川店
約230m【徒歩約3分】
サニー 那の川店
約625m【徒歩約8分】
柳橋連合市場
約750m【徒歩約10分】
ほっともっと 那の川店
約340m【徒歩約5分】
一蘭 那の川店
約415m【徒歩約6分】
マクドナルド 福岡日赤通り店
約595m【徒歩約8分】
クリーニングのきょくとう 清川2丁目店
約160m【徒歩約2分】
TSUTAYA 那の川店
約460m【徒歩約6分】
JOYFIT24 高砂1丁目
約520m【徒歩約7分】
エネオスDr.Driveセルフ 那の川店
約265m【徒歩約4分】
清川公園
約175m【徒歩約3分】
佐賀銀行 渡辺通支店
約220m【徒歩約3分】
西日本シティ銀行 那の川支店
約290m【徒歩約4分】
福岡中央銀行 清川支店
約530m【徒歩約7分】
福岡銀行 平尾支店
約630m【徒歩約8分】
社会医療法人青洲会堤病院
約210m【徒歩約3分】
清川交番
約130m【徒歩約2分】
福岡美野島郵便局
約380m【徒歩約5分】
※徒歩分数は「1分=約80m」で計算しています。
※自転車分数は「1分=約250m」で計算しています。
徒歩10分以上

日本赤十字社福岡赤十字病院
約965m【自転車約4分】
医療法人社団広仁会広瀬病院
約990m【自転車約4分】
医療法人佐田厚生会佐田病院
約1000m【自転車約4分】
桜十字福岡病院
約1090m【自転車約5分】
住吉神社
約1120m【自転車約5分】
福岡市役所
約1640m【自転車約7分】
Bivi
約1070m【自転車約5分】
LOFT
約1320m【自転車約6分】
三越
約1600m【自転車約7分】
天神コア
約1700m【自転車約7分】
※徒歩分数は「1分=約80m」で計算しています。
※自転車分数は「1分=約250m」で計算しています。
この物件から通学可能な学校
大学
- ・九州大学
- ・西南学院大学
専門学校
- ・ILPお茶の水医療福祉専門学校
- ・麻生医療福祉専門学校福岡校
- ・麻生外語観光&製菓専門学校
- ・麻生建築&デザイン専門学校
- ・麻生公務員専門学校福岡校
- ・麻生情報ビジネス専門学校
- ・医療ビジネス専門学校
- ・F・Cフチガミ医療福祉専門学校
- ・大原スポーツ公務員専門学校福岡校
- ・大原保育医療福祉専門学校福岡校
- ・大原簿記情報専門学校福岡校
- ・大村美容ファッション専門学校
- ・北九州予備校博多駅校
- ・九州英数学館
- ・九州外語専門学校
- ・九州観光専門学校
- ・九州電気専門学校
- ・KSC福岡情報専門学校
- ・公務員ビジネス専門学校
- ・香蘭ファッションデザイン専門学校
- ・国際アニメーション専門学校
- ・麻生ビューティカレッジ
- ・河合塾福岡校
- ・代々木ゼミナール福岡校
- ・麻生工科自動車大学校
- ・麻生リハビリテーション大学校
- ・九州スクールオブビジネス
- ・九州デザイナー学院
- ・九州ビジュアルアーツ
- ・公務員ゼミナール
- ・コンピュータ教育学院
- ・第一自動車大学校
- ・東京国際ビジネスカレッジ福岡校
- ・西鉄国際ビジネスカレッジ
- ・日本デザイナー学院
- ・福岡カレッジ・オブ・ビジネス
- ・福岡ビジョナリーアーツ
- ・ライセンスカレッジ
- ・九州医療センター付属福岡看護助産学校
- ・中村国際ホテル専門学校
- ・中村調理製菓専門学校
- ・博多メディカル専門学校
- ・福岡医健専門学校
- ・福岡医療秘書福祉専門学校
- ・福岡ウェディングアンドブライダル専門学校
- ・福岡ECO動物海洋専門学校
- ・福岡外語専門学校
- ・福岡キャリナリー製菓調理専門学校
- ・福岡建設専門学校
- ・福岡国際医療福祉学院
- ・福岡国際コミュニケーション専門学校
- ・福岡こども専門学校
- ・福岡市医師会看護専門学校
- ・福岡歯科衛生専門学校
- ・福岡スクールオブミュージック&ダンス専門学校
- ・福岡スクールオブミュージック高等専修学校
- ・福岡税経専門学校
- ・福岡調理師専門学校
- ・福岡デザインコミュニケーション専門学校
- ・福岡デザイン専門学校
- ・福岡天神医療リハビリ専門学校
- ・福岡ビューティアート専門学校
- ・福岡ホスピタリティ&ブライダル専門学校
- ・福岡有朋高等専修学校
- ・福岡リゾートアンドスポーツ専門学校
- ・福岡リハビリテーション専門学校
- ・福岡理容美容専門学校
物件概要

| 名称 | Rui's Regalo |
|---|---|
| 所在地 | 福岡市中央区清川3丁目27番3号 |
| 総戸数 | 36戸 |
| 駐車場 | 5台(平置き式1台・機械式4台) |
| 駐輪場 | あり |
| バイク置き場 | あり |
| 間取り | 1K36戸 |
| 専有面積 | 25.65㎡ |
| バルコニー面積 | 3.82㎡~5.10㎡ |
| 敷地面積 | 262.32㎡(建築確認申請時) |
| 建築面積 | 160.21㎡(建築確認申請時) |
| 建築延床面積 | 1,183.43㎡(建築確認申請時) |
| 規模・構造 | 鉄筋コンクリート造 10階建 |
| 建築確認番号 | 第ERI-16025980号 |
| 地目 | 宅地 |
| 用途地域 | 商業地域 |
| 建ペイ率 | 80% |
| 容積率 | 400% |
| 完成予定日 | 平成30年2月28日 |
| 入居予定日 | 平成30年3月1日 |
| 設計監理 | 株式会社未来図建設一級建築士事務所 |
| 施工 | 株式会社未来図建設 |
| 企画監修 | UNITED REALTY株式会社 |
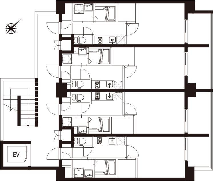
フロア平面図
敷地平面図
設備概要
共用部分
| エレベータ | 株式会社日立ビルシステム 6人乗り 60/min 1基 |
|---|---|
| テレビアンテナ | UHF・BS・CS110°アンテナ設置 |
| 集合郵便受 | 合計37個(住居用36個・管理用1個) |
| 駐車場 | 5台(機械式 4台 ・ 平置き 1台) |
| 自転車置場 | 12台 |
| バイク置場 | 6台 |
| ゴミ置場 | 敷地内に設置 |
| 防災設備 | 消火器、共同住宅用自動火災報知設備、連結送水管、非常コンセント設備、ガス漏れ等設備 |
| 避雷針 | 屋上に1カ所設置 |
| 水道 | 福岡市水道局 |
| 電気 | 九州電力 |
| ガス | LPガス(株式会社サンケイガス) |
| 排水 | 公共下水道に直接放流 |
| 宅配ボックス | あり |
| 防犯設備 | オートロック、電子錠、防犯カメラ |
専有部分
| A1 A2 A3 A4 - type | |
|---|---|
| 玄関 | ドアホン シューズクロゼット |
| リビング・ダイニング | TVモニター付インターフォン(カラーモニター録画機能付き) |
| キッチン | ビルトイン2口ガスコンロ シングルレバー式混合水栓 壁付システムキッチン W1,500mm |
| 洗面室 | 洗面化粧台・洗濯パン(上部収納つき)・タオル掛け |
| バスルーム | 1014パネル式ユニットバス(壁・天井共) 追炊き機能 収納棚 ハンドシャワー |
| トイレ | 温水洗浄便座付きトイレ・ペーパーホルダー・タオル掛け |
| 給水 | キッチン、バスルーム、洗面化粧台、トイレ、洗濯パン |
| 給湯 | キッチン、バスルーム、洗面化粧台(3箇所給湯) |
| 電話 | 各居室設置可能 |
| テレビ | 各居室設置可能 |
| 換気 | キッチン(レンジフード)単独換気扇、トイレ・バスルーム・洗面所3室換気 |
| 冷暖房 | 1基(2.5kg) |
| 住戸玄関キー | ダブルロック(シングルロック+デジタルキー) |
| インターネット | FREE Wi-Fi 利用料無料で即日使用可能(株式会社アクセスエモーション提供「TEPOTプラス」) ※NTTフレッツ光・BBIQ光・auひかり等個別契約可能 |
| A1 A2 A3 A4 - type | |
|---|---|
| 玄関 | ドアホン シューズクロゼット |
| リビング・ダイニング | TVモニター付インターフォン(カラーモニター録画機能付き) |
| キッチン | ビルトイン2口ガスコンロ シングルレバー式混合水栓 壁付システムキッチン W1,500mm |
| 洗面室 | 洗面化粧台・洗濯パン(上部収納つき)・タオル掛け |
| バスルーム | 1014パネル式ユニットバス(壁・天井共) 追炊き機能 収納棚 ハンドシャワー |
| トイレ | 温水洗浄便座付きトイレ・ペーパーホルダー・タオル掛け |
| 給水 | キッチン、バスルーム、洗面化粧台、トイレ、洗濯パン |
| 給湯 | キッチン、バスルーム、洗面化粧台(3箇所給湯) |
| 電話 | 各居室設置可能 |
| テレビ | 各居室設置可能 |
| 換気 | キッチン(レンジフード)単独換気扇、トイレ・バスルーム・洗面所3室換気 |
| 冷暖房 | 1基(2.5kg) |
| 住戸玄関キー | ダブルロック(シングルロック+デジタルキー) |
| インターネット | FREE Wi-Fi 利用料無料で即日使用可能(株式会社アクセスエモーション提供「TEPOTプラス」) ※NTTフレッツ光・BBIQ光・auひかり等個別契約可能 |










